Добро пожаловать на http://vipplan.ru

Випплан Саяногорск - это тысячи проектов домов в нашем каталоге!

Вы всегда сможете найти для себя проект дома вашей мечты! Даже если этого не случилось, мы готовы в любую минуту предложить проект индивидуального дома.

Забыли пароль?
Вы еще не регистрировались?

Перейдите по ссылке ниже на страницу регистрации.

Регистрация...

Внимание!!!

В проектную документацию могут быть внесены изменения любой сложности, в соответствии в Вашими пожеланиями!

Полезные статьи

Типы и разновидности кровли

Кровля состоит из сплошного настила, стяжки и обрешетки, поддерживающих стропила и несколько слоев изоляции, призванных уберечь кровельное пространство от негативного воздействия пара и влаги....

Проекты быстровозводимых домов и коттеджей в Саяногорске

Некоторые люди до сих пор считают, что быстровозводимые дома представляют собой безликие, недолговечные, однотипные строения. Эти утверждения не соответствуют действительности. На данный момент, строительные технологии шагнули вперед и дома «быстрого приготовления» считаются эталоном комфорта, уюта и даже выделяются, в архитектурном плане, на фоне дорогих кирпичных коттеджей. Быстровозводимые дома не дорогие и изготавливаются в кратчайшие сроки....

Проекты домов и коттеджей > Каталог проектов домов > Уютный коттедж с мансардой Vg1355

Уютный коттедж с мансардой Vg1355

Уютный коттедж с мансардой
Зарегистрируйтесь

Проект № Vg1355


Техническое описание
Общая площадь: 158.42 м2
Жилая площадь: 89.25 м2
Высота здания: 9.83 м
Размеры дома: 14.77м×13.64м
Кол-во комнат: 5
Цокольный этаж: нет
Гараж: нет
Мансарда: есть

Kонструкция
Фундамент: Монолитная ж/б плиты
Перекрытия: Монолитные перекрытия
Материал стен: Газобетон

Архитектурный раздел
Конструктивный раздел
Инженерный раздел
АР+КР - 56 000 (Со скидкой 20%)
АР+КР+ИР - 111 300 (Со скидкой 50%)
Проект индивидуального однотажного жилого дома с мансардой с размерами здания 14,77 x 13,64 м. Наружная отделка здания – фасадная штукатурка. Фундамент – монолитная утепленная ж/б плита ("Шведская»). Наружные стены – газобетонные блоки с утеплением минеральной ватой с отделкой фасадной штукатуркой. Внутренние стены - из газобетонных блоков. Перегородки – из газобетонных блоков. Пол первого этажа - монолитная утепленная ж/б плита.. Межэтажное перекрытие- монолитная ж/б плита. Крыша гибкая черепица. Кровля – многоскатая. Окна - металлопластиковые, выполненные по индивидуальному заказу.
Генплан застройки участка / Паспорт проекта 7000 руб / 10000 руб
Инженерный раздел (полный) 55300 руб (79000 руб)
Смета на строительство 39500 руб
Теплотехнический расчет материалов стен Бесплатно
Стоимость проекта со незначительнми изменениями 66050 руб
Стоимость проекта со средними изменениями* 77900 руб
Стоимость проекта со значительными изменениями** 81100 руб

План первого этажа


Тамбур — 1,92 кв м
Холл — 11,00 кв м
Гостиная — 29,75 кв м
Кабинет — 10,48 кв м
Кухня — 11,27 кв м
С/у — 3,63 кв м
Гараж — 18,08 кв м

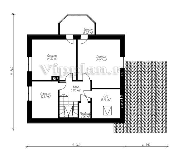
План мансардного этажа


Холл — 5,98 кв м
Спальня — 18,70 кв м
Спальня — 20,51 кв м
Спальня — 10,31 кв м
С/у — 8,76 кв м
Гардероб — 1,96 кв м
Уютный коттедж с мансардой Уютный коттедж с мансардой Уютный коттедж с мансардой Уютный коттедж с мансардой
Внесение изменений и привязка к участку строительства

В любой из проектов от компании VIPplan - Саяногорск по вашему желанию могут быть внесены изменения в материалы стен, материалы наружной отделки дома, а также будет произведена адаптация проекта под конкретный регион строительства (с учетом грунтов региона, геологических особенностей вашего участка и местных климатических условий) - БЕСПЛАТНО !!! (кроме проектов со скидкой и проектов наших партнеров).

Любой из проектов, размещенных на сайте sayanogorsk.vipplan.ru мы можем выполнить из требуемых вам строительных материалов: ячеистый бетон (газобетон, пеноблок), керамоблок, кирпич, шлакоблок, бетонный блок, дерево (брус, клееный брус), каркасная технология (деревянный каркас, металлокаркас (ЛСТК)).

Фасад дома и его наружную отделку так же возможно выполнить с применением различных облицовочных материалов: структурной штукатурки, (с утеплителем и без), сайдингом (пластиковый или металлосайдинг), фиброплитами, кирпича.

 
6 Избранные
проекты

Доставка проектов по России: Москва (Московская область), Санкт-Петербург (Ленинградская область), Краснодар, Ростов-на-Дону, Ставрополь, Сочи, Волгоград, Новосибирск, Белгород, Брянск, Воронеж, Саратов, Хабаровск, Астрахань, Нальчик, Владикавказ, Екатеринбург, Тюмень, Самара, Нижний Новгород, Казань, Пермь, Уфа, Челябинск, Красноярск, Ханты-Мансийск, Иркутск, Курган, Оренбург, Омск, Томск, Барнаул, Новокузнецк, Кемерово, Абакан, Чита, Якутск, Южно-Сахалинск, Петропавловск-Камчатский и страны ближнего зарубежья: Белоруссия, Украина, Казахстан