Добро пожаловать на http://vipplan.ru

Випплан Саяногорск - это тысячи проектов домов в нашем каталоге!

Вы всегда сможете найти для себя проект дома вашей мечты! Даже если этого не случилось, мы готовы в любую минуту предложить проект индивидуального дома.

Забыли пароль?
Вы еще не регистрировались?

Перейдите по ссылке ниже на страницу регистрации.

Регистрация...

Внимание!!!

В проектную документацию могут быть внесены изменения любой сложности, в соответствии в Вашими пожеланиями!

Полезные статьи

Дом это прекрасное вложение

Современный рынок недвижимости диктует свои правила. Цены на землю и недвижимость в Саяногорске постоянно растут и вынуждают по-другому смотреть на покупку собственного дома. Не только со стороны получения удобного, благоустроенного жилья, но и со стороны капитализации и инвестировании своих средств...

Монолитный коттедж с несъемной опалубкой

Перед тем, как вы задумаетесь о строительстве своего коттеджа, необходимо выбрать, сами вы будете руководить строительством, нанимать разных рабочих, или будете обращаться в строительную фирму, и заключать с ними договор. Но даже к этому вопросу нужно подходить правильно, обдумав все плюсы и минусы выбора....

Проекты домов и коттеджей > Каталог проектов домов > Проект комфортного дома с мансардой Vg1257

Проект комфортного дома с мансардой Vg1257

Проект комфортного дома с мансардой
Зарегистрируйтесь

Проект № Vg1257


Техническое описание
Общая площадь: 227.89 м2
Жилая площадь: 91.9 м2
Высота здания: 8.88 м
Размеры дома: 13.56м×13.21м
Кол-во комнат: 5
Цокольный этаж: нет
Гараж: нет
Мансарда: есть

Kонструкция
Фундамент: Ленточный
Перекрытия: Сборные ж/б плиты
Материал стен: Газобетон

Архитектурный раздел
Конструктивный раздел
АР+КР - 64 000 (Со скидкой 20%)
Срок подготовки проекта — 7 рабочих дней. Проект индивидуального одноэтажного одноквартирного жилого дома с мансардой с размерами здания 13,56x 13,21м. Наружная отделка здания - комбинированная: фасадная штукатурка, дикий камень, деревянные панели. Цоколь- дикий камень. Кровля - керамическая черепица. Наружные стены 1 этажа: газобетонные блоки, вентзазор, отделка диким камнем. Наружные стены мансардного этажа: газобетонные блоки с отделкой фасадной штукатуркой. Частично по фасаду -отделка деревянными панелями. Внутренние стены - из газобетонных блоков. Перегородки выполнить габетонных блоков. Перемычки - монолитные и сварные из профиля проката. Перекрытие над первым этажом - сборные ж/б плиты перекрытий. Пол первого этажа - пол по грунту. Окна - металлопластиковые, выполненные по индивидуальному заказу. Лестница - по металлическому каркасу. Выполняется по индивидуальному заказу.
Генплан застройки участка / Паспорт проекта 7000 руб / 10000 руб
Инженерный раздел (полный) 114000 руб
Смета на строительство 57000 руб
Теплотехнический расчет материалов стен Бесплатно
Стоимость проекта со незначительнми изменениями 74300 руб
Стоимость проекта со средними изменениями* 91400 руб
Стоимость проекта со значительными изменениями** 96000 руб

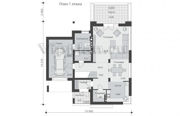
План первого этажа


Прихожая — 3,90 м2
Холл — 5,67 м2
Гостиная — 30,87 м2
Столовая — 10,32 м2
Холл — 10,69 м2
Кладовая — 3,93 м2
Кухня — 10,28 м2
Бойлерная — 6,74 м2
С/у — 4,12 м2
Гараж — 23,18 м2

План мансардного этажа


Холл — 9,88 м2
Спальня — 25,94 м2
Гардероб — 4,55 м2
Спальня — 15,92 м2
Гардероб — 3,90 м2
Спальня — 19,17 м2
С/у — 11,63 м2
Помещение — 23,18 м2
Проект комфортного дома с мансардой Проект комфортного дома с мансардой Проект комфортного дома с мансардой Проект комфортного дома с мансардой

Модификации проектов

Внесение изменений и привязка к участку строительства

В любой из проектов от компании VIPplan - Саяногорск по вашему желанию могут быть внесены изменения в материалы стен, материалы наружной отделки дома, а также будет произведена адаптация проекта под конкретный регион строительства (с учетом грунтов региона, геологических особенностей вашего участка и местных климатических условий) - БЕСПЛАТНО !!! (кроме проектов со скидкой и проектов наших партнеров).

Любой из проектов, размещенных на сайте sayanogorsk.vipplan.ru мы можем выполнить из требуемых вам строительных материалов: ячеистый бетон (газобетон, пеноблок), керамоблок, кирпич, шлакоблок, бетонный блок, дерево (брус, клееный брус), каркасная технология (деревянный каркас, металлокаркас (ЛСТК)).

Фасад дома и его наружную отделку так же возможно выполнить с применением различных облицовочных материалов: структурной штукатурки, (с утеплителем и без), сайдингом (пластиковый или металлосайдинг), фиброплитами, кирпича.

 
6 Избранные
проекты

Доставка проектов по России: Москва (Московская область), Санкт-Петербург (Ленинградская область), Краснодар, Ростов-на-Дону, Ставрополь, Сочи, Волгоград, Новосибирск, Белгород, Брянск, Воронеж, Саратов, Хабаровск, Астрахань, Нальчик, Владикавказ, Екатеринбург, Тюмень, Самара, Нижний Новгород, Казань, Пермь, Уфа, Челябинск, Красноярск, Ханты-Мансийск, Иркутск, Курган, Оренбург, Омск, Томск, Барнаул, Новокузнецк, Кемерово, Абакан, Чита, Якутск, Южно-Сахалинск, Петропавловск-Камчатский и страны ближнего зарубежья: Белоруссия, Украина, Казахстан